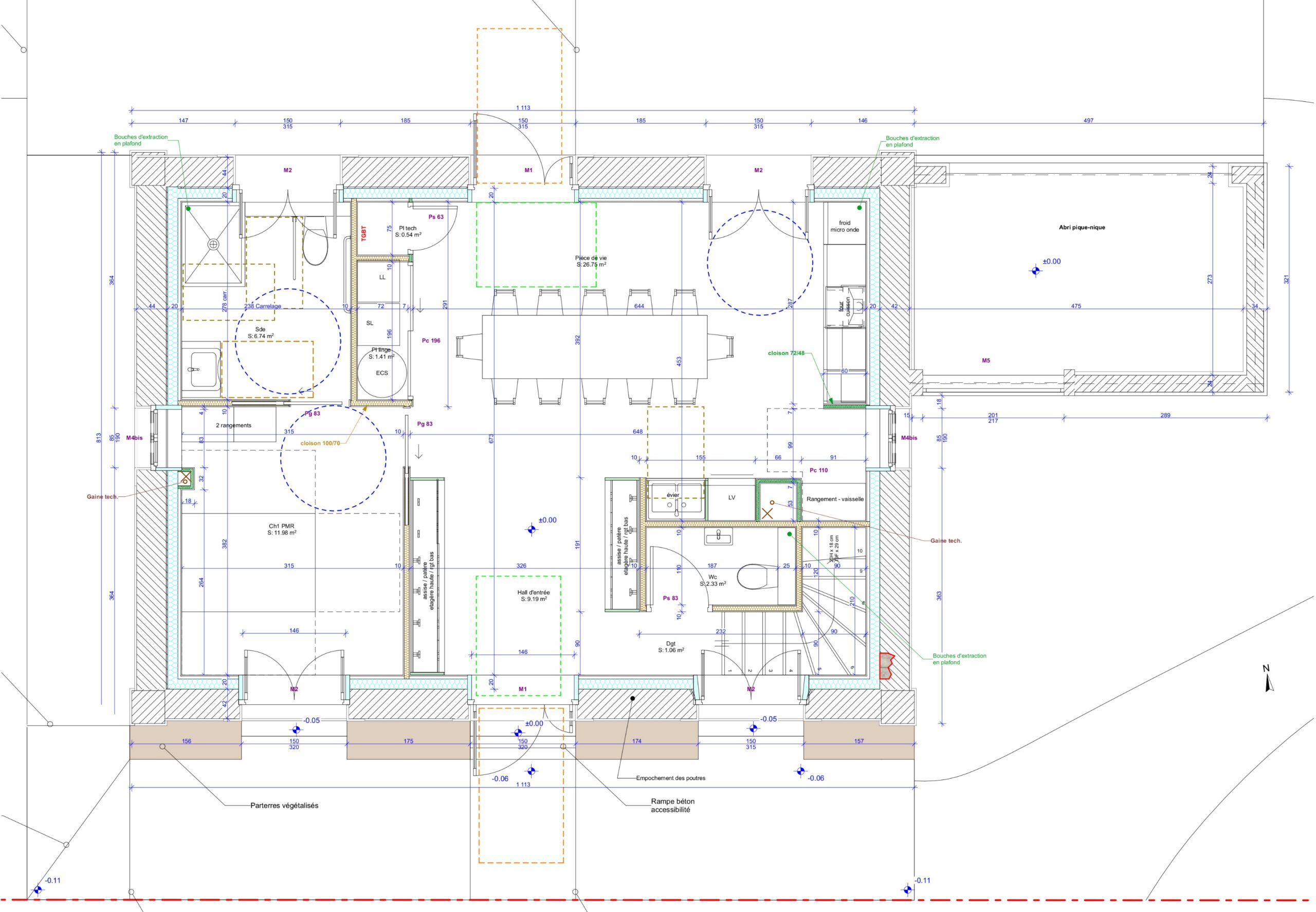
L’ancienne gare sera restructurée en gîte de groupe avec pour changement d’aspect le remplacement des menuiseries blanches du RDC et de l’étage en menuiseries de coloris gris foncé, la suppression des 2 fenêtres de toit au Nord, la restauration et/ou remplacement des garde-corps, des plaques de gare et des volets battants, ensemble peint de coloris gris foncé. Sa toiture à 2 pans avec couverture sera conservée.
L’auvent attenant à la gare sera restauré à l’identique. Les murs maçonnés en briques seront restaurés. L’annexe restructurée en local à vélo et WC public verra ses menuiseries remplacées par des menuiseries de teinte gris foncé. Sa toiture à 2 pans avec couverture en tuiles sera conservée.








