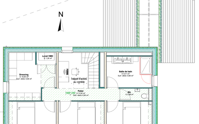
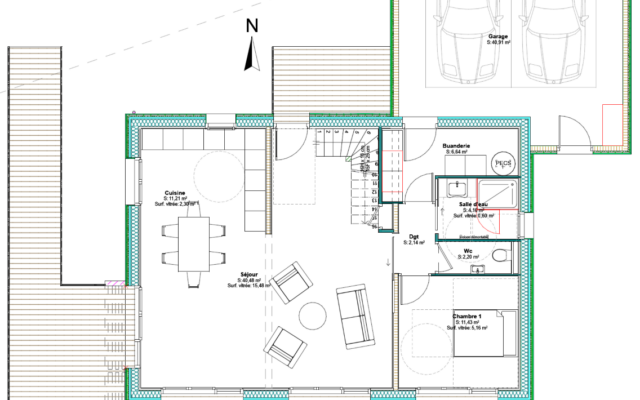
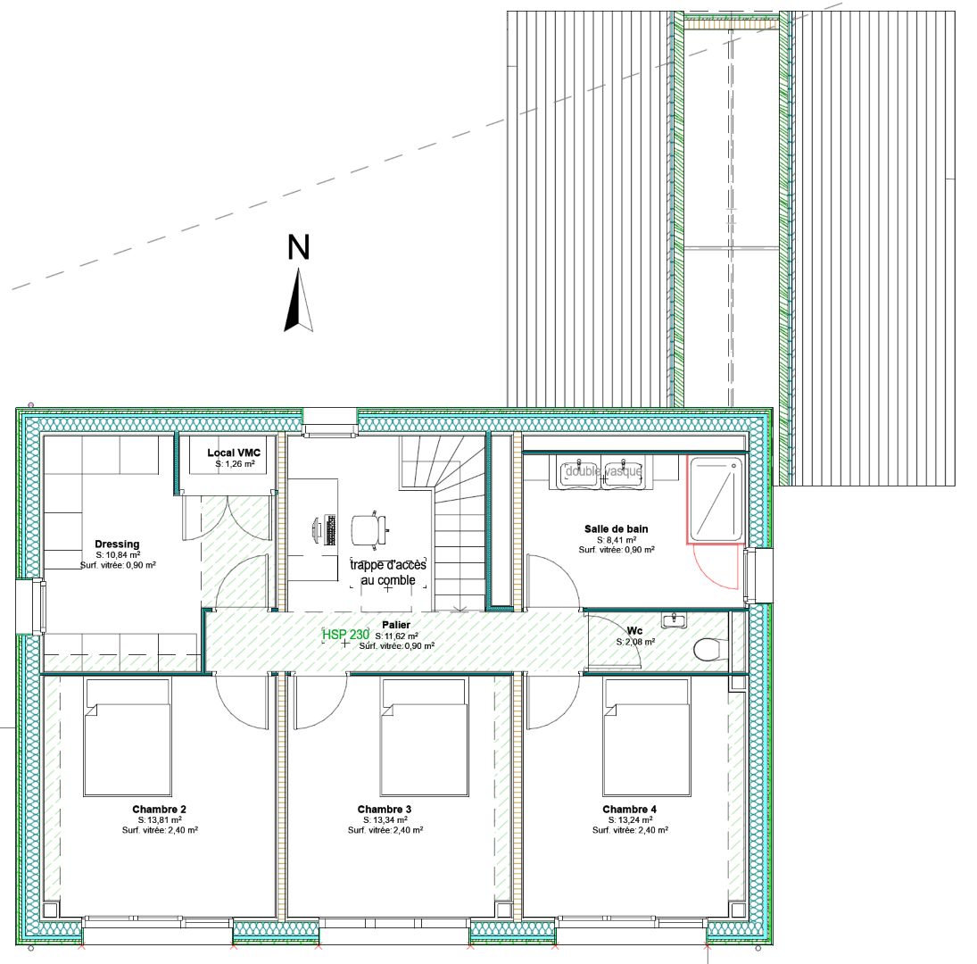
Construction d’une maison passive, dans un hameau proche de Fougères avec une vue dégagée vers le Sud et la vallée du Couesnon.
Une forme simple, respectant l’architecture local, une structure en bois, des matériaux respectueux de l’environnement pour un habitat se voulant le plus sain possible.










