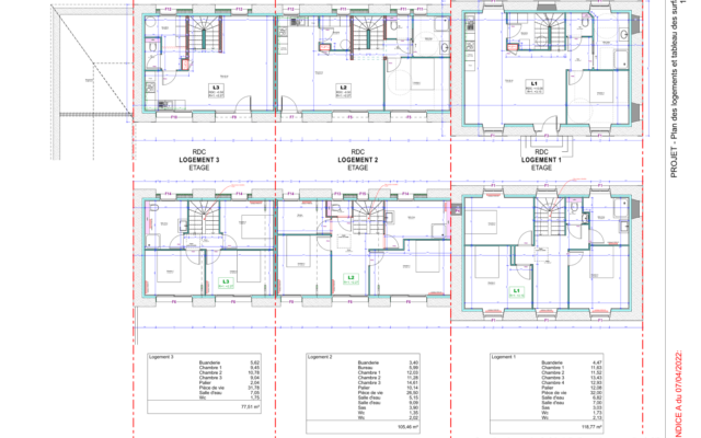
Le projet prévoit la réhabilitation des constructions existantes afin d’y créer trois logements. Le parti pris est celui de la conservation de l’existant en y apportant une petite touche contemporaine. La volumétrie existante est peu impactée par le projet, les deux souches de cheminées du volume principal sont supprimées ainsi que celles du volume secondaire.
Sur le volume principal les ouvertures sont conservées à l’exception de 3 ouvertures qui seront obturées avec une ossature bois et du bardage bois naturel. Sur le volume secondaire, les ouvertures existantes sont agrandies verticalement afin de créer des fenêtres et des portes correspondant au projet.
En dehors des menuiseries, les grandes ouvertures sont obturées par une ossature bois et du bardage bois naturel. Le plancher RDC est abaissé et un plancher intermédiaire est créé dans le volume existant.






